地址:江苏省苏州市昆山市开发区大通路701号
电话:0512-88831255
传真:0512-88831255
邮箱:BTM001@batman-sz.com
日期:2020-05-09
一、概况
干式螺杆真空泵,是利用一对旋向相反的螺杆转子,在泵壳中作同步高速啮合旋转运动,产生吸气和排气作用的抽气设备。采用免维护设计技术解决了真空泵维护麻烦和费用高的问题。真空泵工作腔内无需润滑油和密封液,可回收各类可凝性气体,解决了蒸汽喷射泵、滑阀泵、旋片泵、液环泵等可能对真空系统造成的污染和对环境造成的污染问题,同时回收物还能创造附加经济效益。
二、主要特点
●抽速范围广,可直排大气,单泵使用即可达到多级串联的效果。单级设计可以获得5PA的高真空。
●可采用氮气吹扫,清洗维护操作简单,维修方便。
●螺杆材质为整体式球墨铸铁强度高、性能稳定。
●螺杆间相互不接触无摩擦,不需要润滑油脂,无油污反流,无废气废液排放,清洁环保能耗低。
●泵腔内部及零件可根据需要进行表面防腐处理,适用于化工制药行业的特殊要求。
●螺杆经过精细动平衡校正,运转平稳,噪声低、振动小,使用寿命长。
三、规格参数
| 型号 | 单位 | DP35 | DP70 | DP150 | DP280 | DP390 | DP550 | DP650 | DP800 | DP1100 |
| 抽速 | m3/Hr | 35 | 70 | 150 | 280 | 330 | 550 | 600 | 800 | 1100 |
| L/S | 10 | 19 | 42 | 78 | 92 | 153 | 167 | 222 | 306 | |
| 极限压力 | Torr | 0.03 | 0.03 | 0.03 | 0.03 | 0.03 | 0.03 | 0.03 | 0.04 | 0.04 |
| Pa | 4 | 4 | 4 | 4 | 4 | 4 | 4 | 5 | 5 | |
| 电机功率 | KW | 2.2 | 4 | 5.5 | 7.5 | 11 | 15 | 22 | 30 | 37 |
| 电机转速 | RPM | 2900 | 2900 | 2900 | 2900 | 2900 | 2900 | 2900 | 2900 | 2900 |
| 进口法兰 | mm | DN40 | DN40 | DN40 | DN80 | DN80 | DN100 | DN100 | DN100 | DN125 |
| 出口法兰 | mm | DN25 | DN30 | DN30 | DN40 | DN40 | DN50 | DN65 | DN65 | DN80 |
| 冷却水压力 | 2~4 | 2~4 | 2~4 | 2~4 | 2~4 | 2~4 | 2~4 | 2~4 | 2~4 | 2~4 |
| 冷却水流量 | L/min | 4 | 4 | 6 | 6 | 6 | 8 | 8 | 8 | 8 |
| 冷却水温度 | ℃ | 5~35 | 5~35 | 5~35 | 5~35 | 5~35 | 5~35 | 5~35 | 5~35 | 5~35 |
| 噪声 | dB | ≤70 | ≤70 | ≤75 | ≤75 | ≤75 | ≤80 | ≤80 | ≤85 | ≤85 |
| 尺寸 | mm | 745*450 *550 | 953*520 *600 | 973*600 *680 | 1123*640 *680 | 1357*640 *680 | 1516*780 *800 | 1609*780 *800 | 1786*840 *930 | 2250*880 *1100 |
| 重量 | Kg | 160 | 195 | 230 | 253 | 450 | 523 | 650 | 1050 | 1500 |
四、剖面图

① 进气口② 排气口③ 冷却水腔④ 螺杆⑤ 油箱⑥ 气体通道⑦ 同步齿轮⑧ 轴承⑨ 机械密封⑩ 骨架油封
五、性能曲线

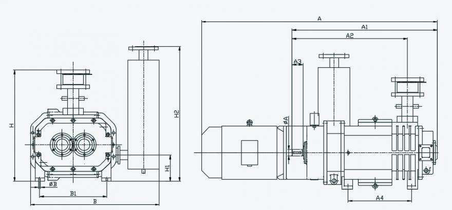
六、外形尺寸

| 型号 | A | A1 | A2 | A3 | A4 | B | B1 | ΦA | DN1 | DN2 | H | H1 | H2 | ΦB |
| DP35 | 899 | 582 | 527 | 47 | 214 | 500 | 210 | 20 | 40 | 25 | 423 | 79.5 | 584 | Φ14 |
| DP70 | 1006 | 629 | 574 | 47 | 258 | 519 | 236 | 20 | 40 | 30 | 445 | 87 | 592 | Φ14 |
| DP150 | 953 | 613 | 483 | 30 | 275 | 619 | 270 | 22 | 40 | 30 | 415 | 68 | 573 | Φ14 |
DP280 | 1204 | 720 | 543 | 36 | 320 | 640 | 340 | 32 | 80 | 40 | 526 | 100 | 680 | Φ14 |
DP390 | 1257 | 757 | 584 | 46 | 320 | 645 | 340 | 32 | 80 | 40 | 526 | 90 | 680 | Φ14 |
DP550 | 1440 | 879 | 673 | 46 | 410 | 780 | 436 | 42 | 100 | 50 | 607 | 140 | 930 | Φ18 |
DP650 | 1545 | 909 | 697 | 51 | 410 | 780 | 436 | 42 | 100 | 65 | 647 | 120 | 907 | Φ18 |
DP800 | 1747 | 1011 | 790 | 51 | 450 | 961 | 498 | 55 | 125 | 80 | 740 | 150 | 1150 | Φ22 |
DP1100 | 2250 | 1430 | 1241 | 51 | 750 | 880 | 498 | 55 | 110 | 75 | 790 | 180 | 1100 | Φ22 |
上一篇: V系列油封单级旋片真空泵
下一篇: VDP变距干式螺杆真空泵